Skip to main content

Simple to Specify Clamp icon Easy to Order Clamp icon Rapid to Assemble

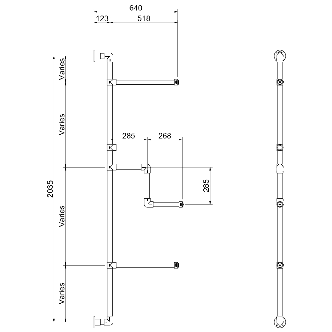
Interclamp Garment Rack - GR0012

The Interclamp GR0012 is a wall-mounted double straight arm, one middle bent arm key clamp garment rack system, commonly used within retail establishments to create vibrant and attractive clothing displays.

Adjustable and adaptable by means of a simple hexagon key, the hanging arms may be quickly and easily repositioned to suit different displays and garments.

Supplied in kit form, requires assembly.

Structure must be attached to wall with suitable fixings (not included).

Figures given as guidance only, dimensions and weights are subject to manfacturing tolerances and may be altered without prior notice.

Do not perform any pre-drilling, tube cutting, casting uprights or any other dimensionally critical processes prior to receiving fittings.

Find out more about how this website uses cookies to enhance your browsing experience. Learn More.